Projektbeispiel 1

Blick von der Gerätehütte rechts unten (Planansicht) in Richtung Wohnzimmer des Hauses kurz nach Einbau des Rollrasens.

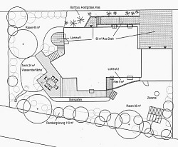
Die gemulchte Böschung wurde mit diversen Ziergehölzen versehen.

 

 

 

 

 

 

 

 

 

Da der Hauseingang ca. 1 Meter über dem Straßenniveau liegt, musste die Höhendifferenz überwunden werden.

Für die Zugangseinfassung sowie die Treppen wurden edle Stelen aus Granit verwendet.

Das Betonpflaster ist versickerungsfähig und passend zum hellgrauen Granit in anthrazit.

Den Rahmen bildet ein heller, gemischtkörniger Kies mit diversen Bambusinseln.

 

 

Dies gelang durch einen ca. 6 Meter langen Zugang mit 2 schrägen Podesten und 3 Stellstufen, die auf den großzügigen Eingangspodest führen.

 

 

 

 

 

 

 

 

 

Aus einem Loch entsteht ein Lichthof…
…dieser wird von gebrochen Felsen gerahmt und gestützt.
Da es sich hierbei um eine Trockenbauweise (ohne Beton) handelt, ergeben sich jede Menge Fugen, die zum Bepflanzen einladen.

 

 

 

 

 

 

 

 

 

Schlicht und einfach:

Garagenzufahrt fertig gepflastert.

 

 

 

 

 

 

 

 

 

Blick vom Teich in Richtung Gartenhütte.
Links im Anschluss an die Holzterrasse wollte der Bauherr einen kleinen Steingarten.
Ebenfalls kurz nach Fertigstellung sind die kleinen Pflänzchen kaum zu sehen.
Das Erdplanum für den Rollrasen war zu diesem Zeitpunkt schon begehbar.

 

 

 

 

 

weiter zum Projektbeispiel 2