Projekte

Hier stellen wir diverse von uns geplante und gebaute Projekte vor.

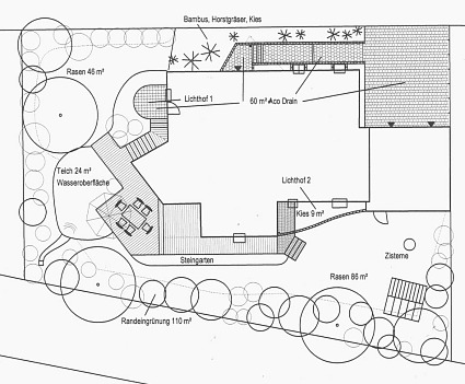
Der Strukturplan auf der rechten Seite dieses Textes wurde von uns für ein Designerhaus entworfen.

Die Beispiele 1 und 4 zeigen verschiedene Elemente der Anlage.

Soweit vorhanden ist zum fertigen Objekt ein Bild vor Baubeginn zugeordnet.

 

 

 

 

Beispiel 1

 

Beispiel 2

 

Beispiel 3

 

Beispiel 4

 

 

 

 

 

 

 

 

Beispiel 5

 

 

 

 

 

 

 

 

 

 

 

 

 

 

 

 

 

 

 

weiter zum ersten Projekt